Projekte


Betriebsgebäude Benjo
Bauherr
Benjamin und Josef Fröwis GmbH
Benjamin und Josef Fröwis GmbH
Ort
Bezau | AT
Bezau | AT
Typologie
Büro und Produktionsgebäude
Büro und Produktionsgebäude
Fertigstellung
2021
2021
Fotografie
Bruno Klomfar
Bruno Klomfar
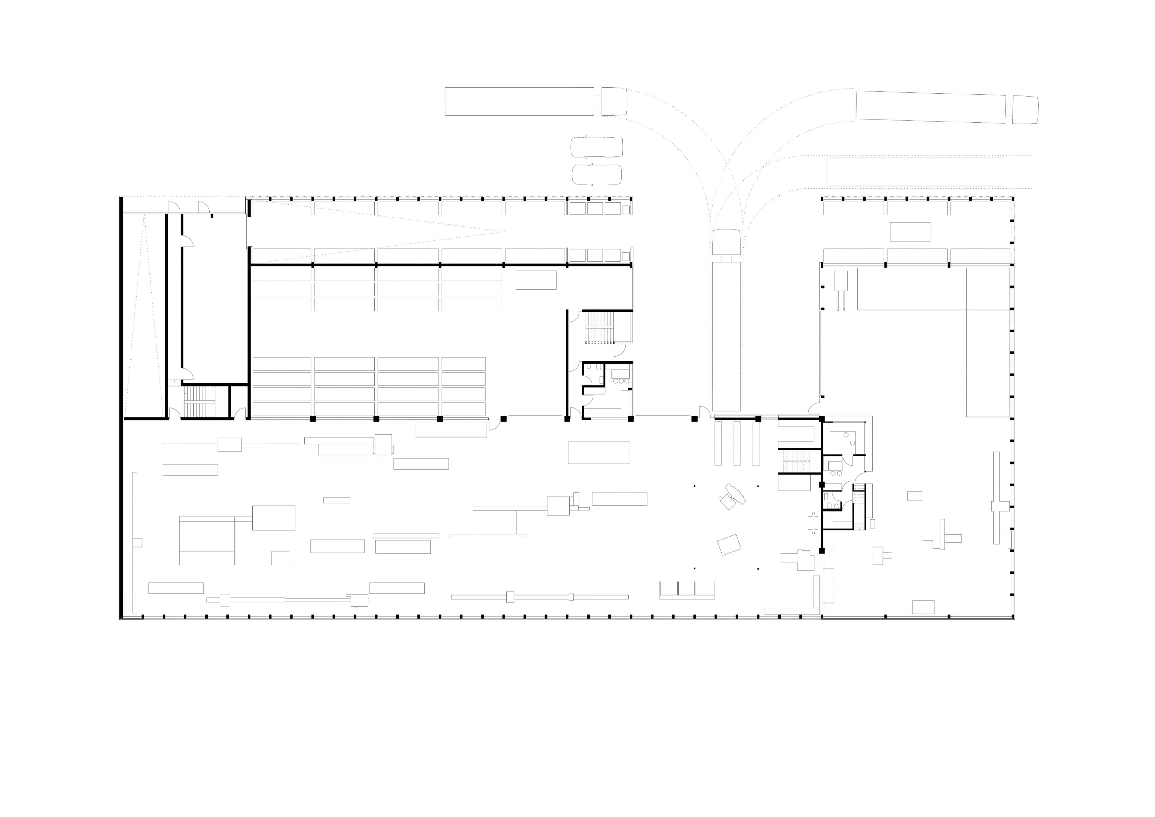
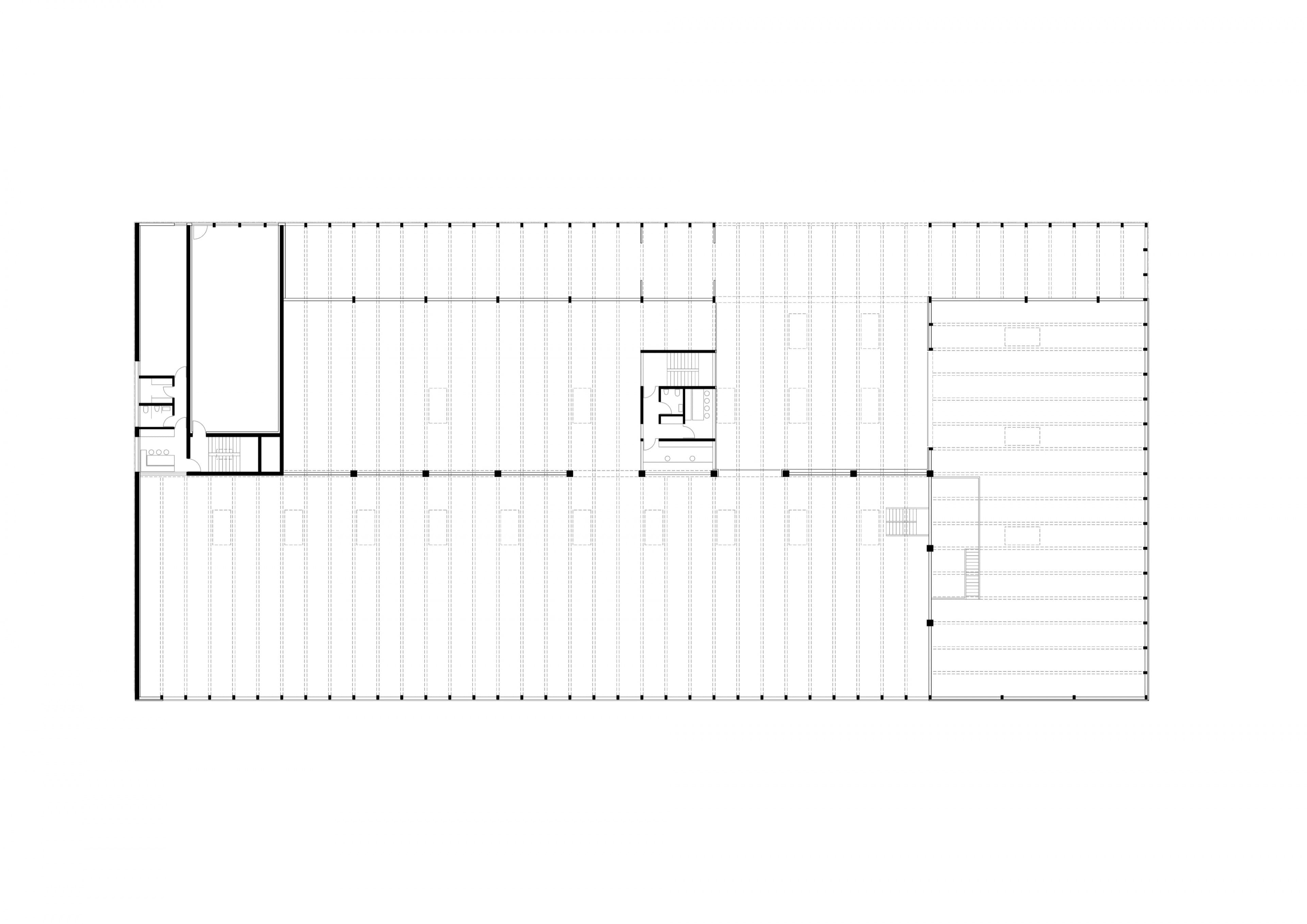
Um künftig regionale Wertschöpfungsketten wieder zu stärken entschieden sich die Bauherren ihren eingesessenen Betrieb für die Herstellung von Hobelwaren neu und leistungsfähiger auszurichten. Hierfür war es notwendig eine neue Betriebsanlage zu errichten, welche den hohen Platzbedarf für Lagerung, Herstellung und Kommissionierung ermöglicht. Eine Großform mit zwei Hallenschiffen bildet den Hauptbaukörper. Sowohl Anlieferung als auch die gesamte Infrastruktur wie beispielsweise das Silo und die Filteranlage sind dabei in die Großform integriert worden.

Schwarzplan






Erdgeschoss

Obergeschoss




