

Hotel Katharinenhof
FM2 Immo GmbH
Dornbirn | AT
Hotel
2017
Norman Radon
Das bestehende Hotel Katharinenhof befinden sich in einer sehr zentralen und attraktiven Lage in Dornbirn. Auf Grund der Anforderungen der Auftraggeber an die Bauaufgabe hat sich der realisierte Hotelneubau als eigenständiger und autarkes Gebäude neben dem Bestand situiert.
Diese Herangehensweise an die Bauaufgabe erzeugt eine klare und selbstbewusste Haltung des Neubaus im städtebaulichen Kontext, welche auch in der Außendarstellung eines modernen Hotels gerecht wird. Weiters wurde es dadurch ermöglicht den laufenden Betrieb des Hotels ohne Einschränkungen weiter zu führen.
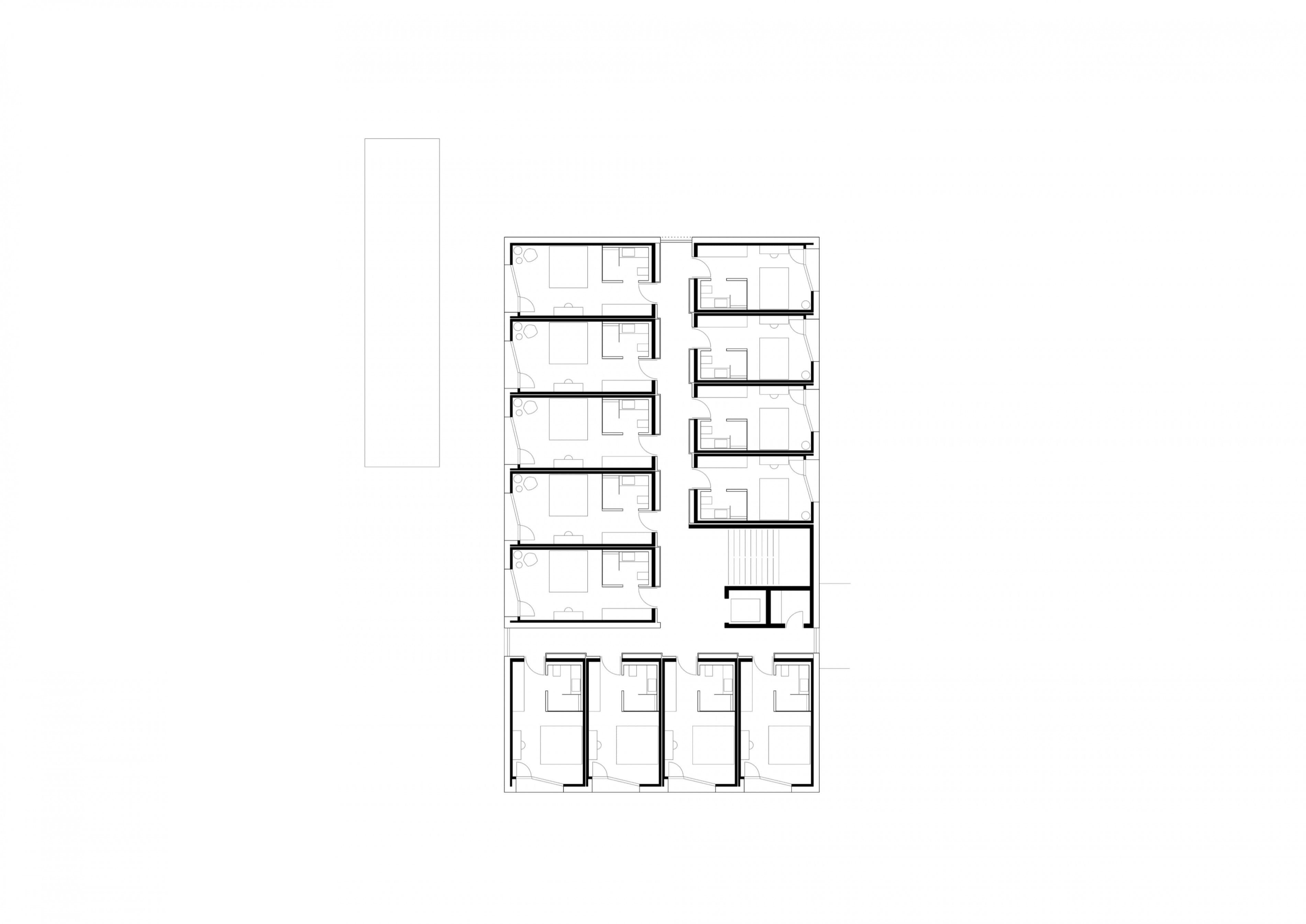
Der Hotelneubau bietet Platz für 39 Zimmern in drei Kategorien. Der Entwurf sieht einen sehr klaren viergeschossigen Metall-Kubus vor, welcher vom Umgebungsniveau abgesetzt auf einem 60cm hohen Betonsockel steht. Durch diese Geste wird eine attraktive vom Straßenniveau angehobene Foyer Zone mit vorgelagerter Terrasse geschaffen. Weiters befinden sich im Erdgeschoss die Büroräumlichkeiten, Nebenräume, eine Frühstücksküche einen Frühstücksraum und eine Verbindung des Bestandes hin zum Neubau. Über diese Verbindung werden auch die neu geschaffenen Allgemeinflächen für den Bestand erschlossen.
Bei der Wahl des Fassadenmaterials viel die Entscheidung auf eine eloxierte Aluminiumplatte bei der die Oberfläche vor dem eloxieren noch geschliffen wurde. Durch dieses Verfahren erhält die an sich glatte Oberfläche eine angenehme und lebendige Haptik und Struktur.
Die Konstruktion des Hotels ist eine Kombination aus einer massiven Betonbauweise des Unter- und Erdgeschosses und einer Holzmodulbauweise ab der Erdgeschossdecke. Dabei wurden die Gangbereiche in Holzelementbauweise und die Zimmer in Modulbauweise errichtet. Auf diese Weise wird es möglich beim Grad der Vorfertigung auf ein sehr hohes Maß zu gelangen. Diese Bauweise ermöglich es die Bauzeit auf ein Minimum zu senken und Präzision durch die Fertigung der Zimmermodule im Werk auf ein Maximum zu steigern. Auf diese Weise wird die Bauzeit erheblich verkürzt, das Hotel wurde mit einer Bauzeit von ca. 7 Monaten errichtet.
















