

Straßenmeisterei Koblach
Amt Vorarlberger Landesregierung
Koblach | AT
Gerätehalle
2025
Bruno Klomfar
Die Straßenmeisterei Feldkirch-Nord sowie die Bauwerkepartie wurden am neuen Standort in Koblach erfolgreich errichtet. Der Neubau entstand im Zuge übergeordneter Leitplanungen und als Reaktion auf die veraltete bauliche Substanz und eingeschränkte Funktionalität des bisherigen Standortes.
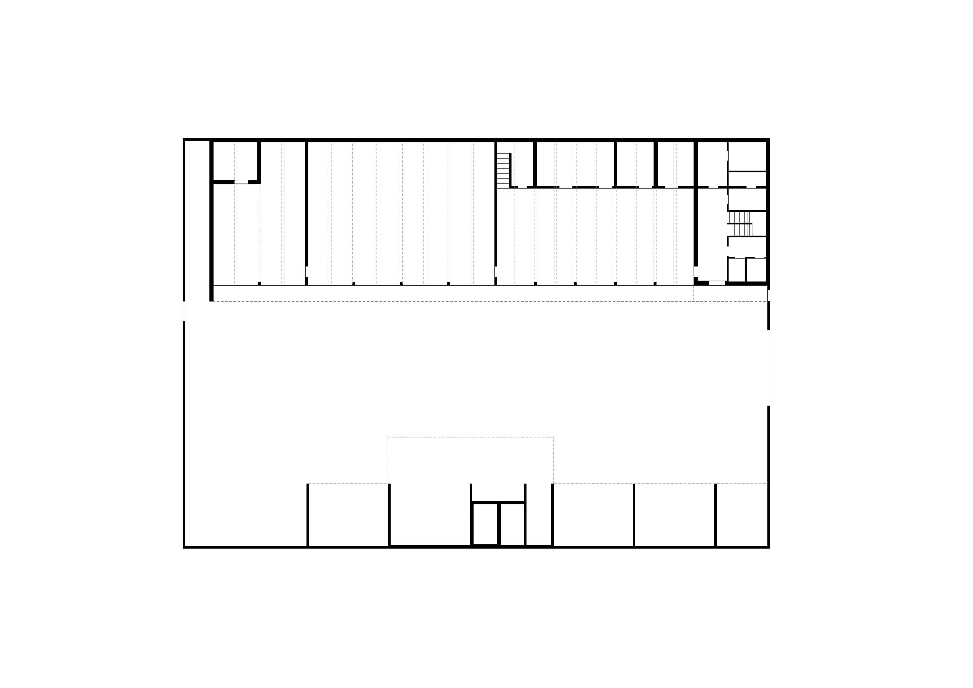
Am Rand eines Industriegebiets in Koblach wurde auf einem nahezu rechteckigen Grundstück eine kompakte Anlage realisiert, die verschiedene Nutzungen in wenigen klar strukturierten Baukörpern vereint. Diese treten als zusammenhängendes Ensemble in Erscheinung und orientieren sich in ihrer Setzung an funktionalen Abläufen und einer klaren räumlichen Ordnung.
Die Anlage besteht aus zwei langgestreckten, einander gegenüberliegenden Baukörpern, zwischen denen eine zentrale Hoffläche liegt. Der geschlossene, beheizte Baukörper beherbergt Garagen, Werkstätten sowie Räume für Personal und Verwaltung. Im gegenüberliegenden Bauteil sind die Außenlagerflächen, die Tankstelle und der Waschplatz untergebracht. Die klare funktionale Trennung ermöglicht effiziente Betriebsabläufe und eine übersichtliche Organisation.
Ein umlaufendes Betonband fasst die gesamte Anlage und übernimmt sowohl gestalterische als auch konstruktive Aufgaben. Es dient als Hofmauer, wird in die Gebäude fortgeführt und verleiht den stark beanspruchten Bereichen die nötige Robustheit. Darüber hinaus treten die Baukörper in Holzbauweise in Erscheinung – außen wie innen ist die Konstruktion zugleich sichtbare Oberfläche. Die Kombination aus Beton im Sockelbereich und Holz in den oberen Zonen schafft eine klare, funktionale Gliederung und eine warme, natürliche Atmosphäre.
Die Bauweise folgt den Prinzipien eines ressourcenschonenden und rückbaufähigen Bauens. Bereits in der Planung wurde auf die Trennbarkeit und Sortenreinheit der eingesetzten Materialien geachtet, um eine spätere Wiederverwendung zu ermöglichen. Statt konventioneller Lösungen kamen nachhaltige Alternativen zum Einsatz: Fachwerkträger aus Schnittholz ersetzen Betonträger, Holzschalungen treten an die Stelle industrieller Werkstoffplatten, Schraubverbindungen ermöglichen Demontage statt Verklebung, und natürliche, unbehandelte Oberflächen ersetzen beschichtete Materialien. So entstand eine zukunftsfähige Infrastruktur, die Funktionalität, Gestaltung und ökologische Verantwortung miteinander verbindet.











